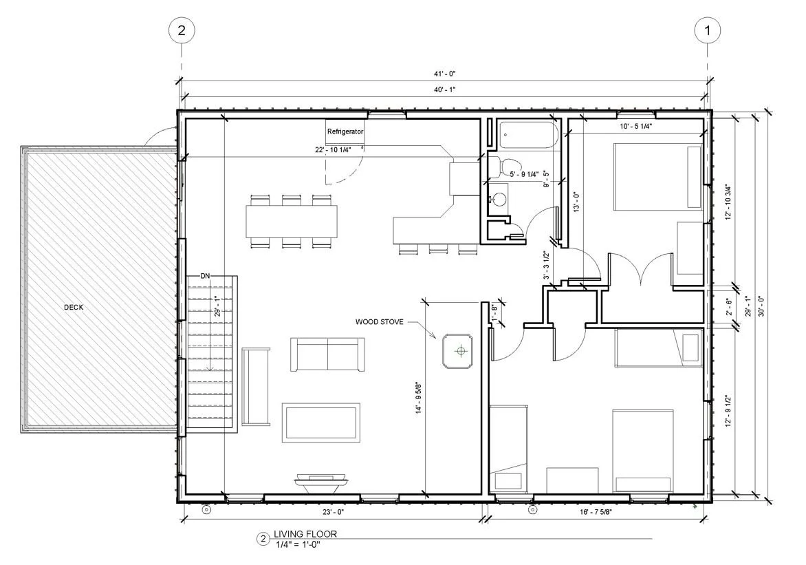
Mountain house with rental flexibility.

  • 1,100 Sq. Ft.

  • 2-3 Bedroom

The client here wanted a mountain getaway for skiing, mountain biking, or just relaxing with a design centered around functionality. Keep the gear, bikes, skis, and laundry downstairs, and keep things clean and comfortable upstairs. Along with the vehicles, the garage needed to accommodate gear storage and have room for a workspace. It also needed to have the ability to be closed off from the living floor so he could rent out the upstairs and still maintain independent access to the mechanical equipment for tenants or service calls without needing to go through the garage.

This layout saw many iterations; there’s plenty of room to create a three bedroom, move the laundry upstairs, or extend the building to add more garage spaces. It serves as functional way to add garage parking to an existing rental property or stand as its own independent home.